Planning to submit a sworn statement in the State of Michigan? Look no further! You can easily access a printable sworn statement form online to streamline the process. Whether you’re a business owner, contractor, or individual, having this form handy can save you time and hassle.
By utilizing the State of Michigan printable sworn statement form, you can ensure that all necessary information is properly documented. This form serves as a legally binding document that attests to the accuracy and truthfulness of the information provided. It’s a crucial step in various legal proceedings and transactions.
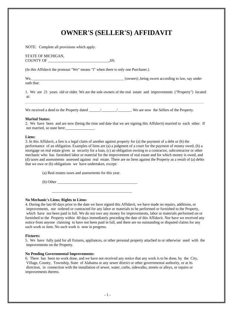
State Of Michigan Printable Sworn Statement Form
State Of Michigan Printable Sworn Statement Form
Before filling out the form, make sure you have all the relevant details on hand. This includes your personal information, the nature of the statement being made, and any supporting documents that may be required. Double-checking your entries can help prevent any errors or omissions.
Once you’ve completed the printable sworn statement form, review it carefully to ensure accuracy and completeness. Sign the document in the presence of a notary public to have it officially notarized. This step adds an extra layer of authenticity and validity to your statement.
Remember to keep a copy of the sworn statement for your records. This can come in handy in case you need to reference it in the future or provide it as proof of the information provided. Staying organized and keeping track of important documents is always a good practice.
So, next time you need to submit a sworn statement in the State of Michigan, make the process easier by using the printable form available online. By following the guidelines and ensuring accuracy, you can navigate this legal requirement with confidence and ease.
Accessing and utilizing the State of Michigan printable sworn statement form is a simple yet essential step in various legal processes. By being prepared and thorough in your approach, you can meet this requirement efficiently and effectively. Don’t let paperwork overwhelm you – streamline the process and stay on top of your legal obligations.
Free Michigan Notary Acknowledgment Form PDF Word EForms
Michigan Affidavit Doc Template PdfFiller
Sworn Statement Fill Online Printable Fillable Blank PdfFiller
Michigan Sworn Statement Excel Fill Out Sign Online DocHub
Michigan Sworn Printable Fill Online Printable Fillable Blank PdfFiller





